吹き抜けのある明るいLDK


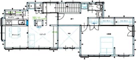
個室が3室あった2階の間仕切りを変更して、二世帯住宅の子世帯が住まえるようにリフォーム。もともとあったロフトを撤去して吹き抜けにすることで明るく開放的なLDKになりました。コンパクトながら収納たっぷりのキッチンスペースには、奥様の気に入られたターコイズブルーのシステムキッチンを設置。構造上残した3本の柱を塗装してモザイクタイルを貼ることで空間のアクセントになり、キッチンに立つのが楽しくなりました。 

 

ご提案パース、リフォーム前写真

リフォーム概要


家族構成 ご主人・奥様・お子様(1歳)
リフォーム面積

63.81㎡

築年数

25年

建物種別

一戸建て

工事内容 

2階全面リフォーム

before

after